19
$299,900 Sale
Listed 3 hours ago
258 Richardson Drive, #U6
· 3
· 1
· 21
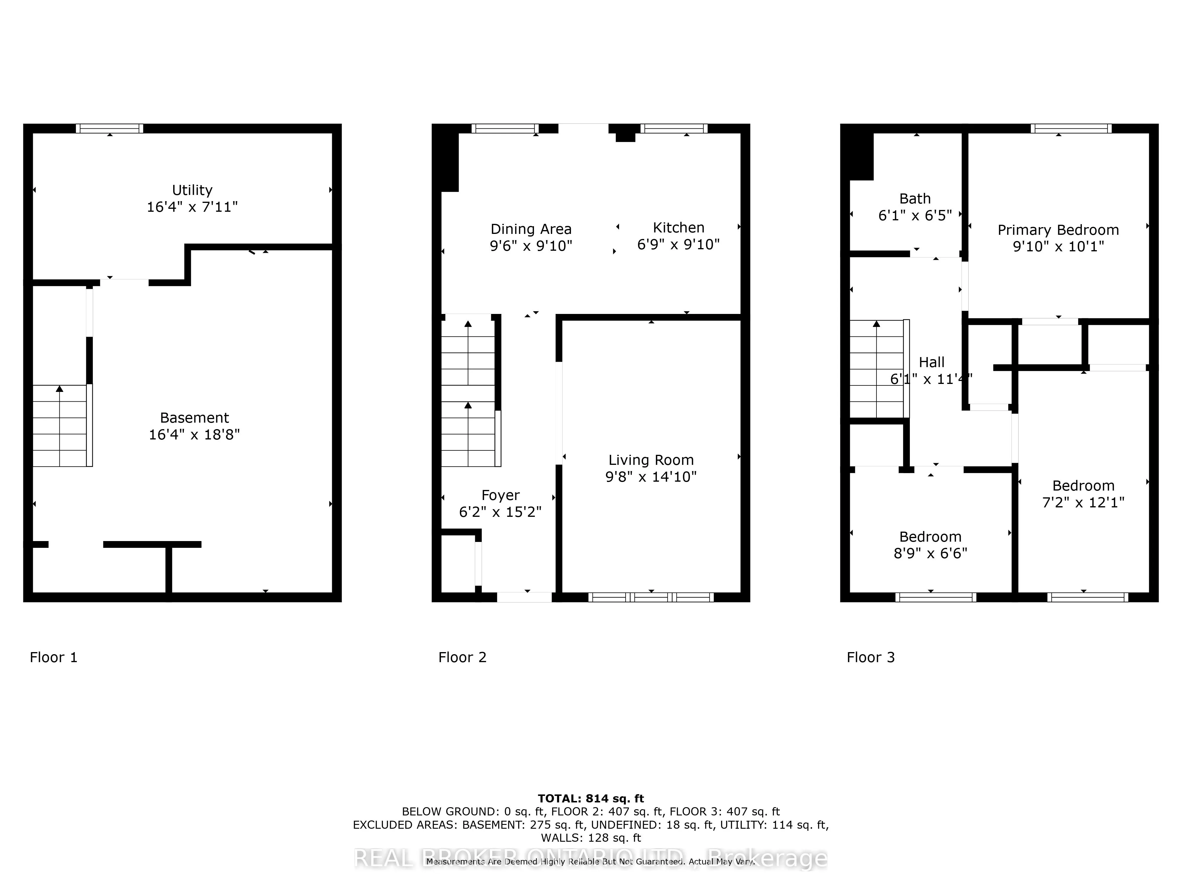
· 1000-1199
Listing History
Buy/Sell/Terminated/Expired listing history for 258 Richardson Drive, #U6
Key Facts
Key facts for 258 Richardson Drive, #U6
Property Type
Condo, 2-Storey
Parking
0 garage, 21 parking
MLS #
X12459984
Size
1000-1199 sqft
Basement
Full,Finished
Listed on
2025-10-14
Lot size
-
Tax
$2,234.76 /yr
Days on Market
1
Approximate Age
-
Maintenance Fee
$327/mo Common Elements, Par...
Description
Welcome to your opportunity to get into the market with this affordable and well-located 3-bedroom, 1-bathroom condo townhome in the heart of Port Dover! This 2-storey end unit offers privacy, space, and unbeatable value perfect for first-time buyers or those looking to add to their investment port...folio. Enjoy a spacious, eat-in kitchen and living room on the main floor ideal for entertaining or relaxing with family. Upstairs, you'll find three well-sized bedrooms and a 4-piece bathroom. This unit backs directly onto a serene ravine, offering peace, quiet, and a touch of nature right in your backyard. Located just minutes from Lakewood Elementary School, Port Dover Public Library, the rec centre, arena, shopping, and of course, the beautiful downtown beach area this home is perfectly positioned for convenience and lifestyle.
Similar Properties (No results)
Courtesy of: REAL BROKER ONTARIO LTD.